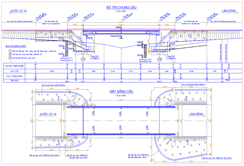
Cầu Sông Phan tại Km125+625.50 thuộc dự án nâng cấp cải tạo quốc lộ 55 nối dài tỉnh Bình Thuận, đoạn Km96+300 – Km205+140, phân đoạn: Km96+300 – Km158+500 & Km186+868 – Km205+140, cầu cắt qua suối thuộc địa phận xã Sông Phan, huyện Hàm Tân, tỉnh Bình Thuận
Cầu nằm trên đoạn tuyến có độ dốc dọc là 0.0%, tim cầu mới nằm trên đường thẳng.
Cầu nằm trên đoạn tuyến có độ dốc dọc là 0.0%, tim cầu mới nằm trên đường thẳng.
Tiêu chuẩn thiết kế
– Tiêu chuẩn thiết kế cầu 22TCN 272-05.
– Đường ô tô – Yêu cầu thiết kế TCVN 4054 – 2005
– Quy phạm thiết kế đường phố, đường quảng trường và đô thị TCXD VN 104-2007.
– Quy trình thiết kế áo đường mềm 22 TCN 211 -06
– Tính toán các đặc trưng dòng chảy lũ 22 TCN 220 -95.
GIẢI PHÁP KẾT CẤU.
 Kết cấu nhịp
– Cầu gồm 1 nhịp giản đơn dài 24m bằng dầm chữ T  BTCT DƯL kéo sau.
– Mặt cắt ngang gồm 4 dầm cao 1.2m, mỗi phiến dầm dùng 6 bó cáp DƯL, mỗi bó gồm 7 tao có đường kính danh định là 12.7 mm theo tiêu chuẩn ASTM A416 – 85 grade 270,  loại có độ chùng thấp.  Cốt thép thường dầm chủ dùng loại CI cho thép tròn trơn, và CIII cho cốt thép có gờ. Bê tông dầm chủ dùng có cường độ fc=400kg/cm2.
– Bản mặt cầu bằng lưới BTCT ,cường độ BT fc=300kg/cm2 dày 100mm, cốt thép dùng loại CI và CIII.
– Dốc ngang mặt cầu được tạo lớp bê tông tạo dốc.
– Lớp phủ mặt cầu từ trên xuống dưới như sau.
+ Lớp bê tông nhựa dày 70mm.
+ Lớp  phòng nước dày 4mm.
– Khe co giãn dùng loại cao su bản thép.
– Gối cầu: Dùng tấm dải cao su có kích thước như sau: 350x550x76,(58)mm.
– Gờ chắn bánh trên cầu bằng BTCT, cường độ fc=300kg/cm2 được đúc tại chỗ cùng với bản mặt cầu, phía trên có tay vịn ống thép mạ kẽm.
Kết cấu phần dưới
– Mố kiểu chữ U bằng BTCT, cường độ fc=300kg/cm2, cốt thép mố dùng loại CI và CIII. Móng mố trên nền móng thiên nhiên (nền đá).
– Bản quá độ đổ tại chỗ bằng BTCT, cường độ fc=300kg/cm2, một đầu tựa lên vai kê tường đỉnh một đầu đặt tự do trên nền đất đắp sau mố.
Tải hồ sơ thiết kế, hồ sơ bản vẽ (file CAD) cầu dầm I24m tại đây
[easy_media_download url="https://kuturl.com/st?api=7624ebd0f9e0958273e39f5ef2f3aca1d6105e88&url=https://mshare.io/file/sGnm0D" width="200" height="50" text="FREE DOWNLOAD" color="red_darker" target="_blank"]

